

とことんママの【嬉しい】を考えた動線計画の間取りです。
水廻りが集中しているため、家事動線も短くなるように配慮しました◎


というのが、2世帯住宅のオーソドックスなパターンです。
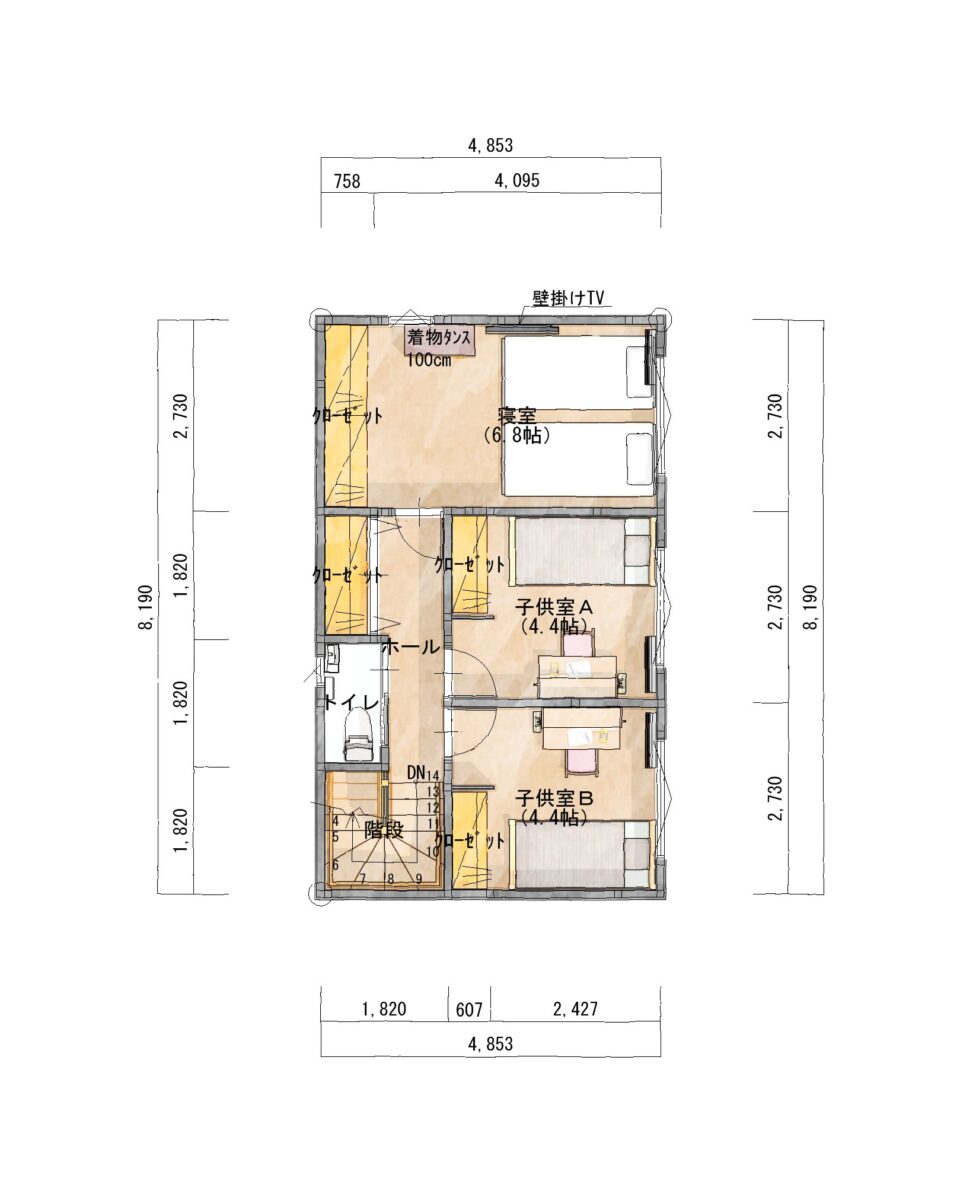
子世帯を2階にする際に注意したい事は【親世帯との生活リズムの違いによる音の問題】です。
親世帯は朝・晩早い生活ですが、どちらかというと子世帯は朝晩共にゆっくりな生活になるからです。
そこで、この間取りでは、水廻り、LDK、各居室の位置を1階・2階でほぼ同位置に配置しました。
こうする事によって、生活リズムは違えども足音や生活音の問題は大分解消できると思います。
1階と2階の部屋構成
二世帯住宅をご検討中の方は是非参考にして下さいね。


このような事を考えながら間取りを考えてみました。
最近の家づくりは1階が大きくなる傾向があるので、階段や廊下をつくるのに必要とされるスペースを極力省き、少しでも部屋を大きくとって、生活が窮屈にならないように工夫しました。


1階はLDK+和室と水廻り、2階は主寝室と子供室2つで35坪前後の家を多くご提案していますが、もう少しコンパクトにまとめた間取りを考えてみました。
中庭をつくる事によってLDKの大きな窓にカーテンを吊るす事なく開放感いっぱいの暮らしをおくる事が出来ます。


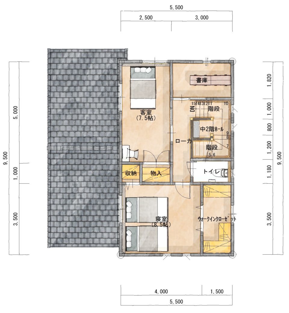
子供は成長すると必然的に親元を巣立っていきます。夫婦2人になるとどうしても使わなくなってしまうのが2階部分です。
そこで、将来を見据えて1階に寝室を配置した間取りを考えました。
年を重ねていくと階段の上り下りは億劫になってきますもんね。
LDKには吹き抜けを設けて解放感のある暮らしがおくれそうです。リビングの一角に薪ストーブを設置するのも良いですよね。


道路や歩道からの視線を気にせずにカーテンをあけて生活したいという方にオススメの間取りです。
道路から見えるところには余計な窓を設置せず、外部からの視線を入れない工夫をしたタイルテラスから沢山光が差し込むように配慮しました。


豊かな生活を送る為の要素をギュっと詰め込んだ間取りにしました。
延床面積は32.64坪とコンパクトですが、それ以上の広さと収納力を持ち合わせたお家です。


家族が楽しく暮らせる工夫を沢山取り込んだお家です。


これらの工夫を盛り込んだ間取りです。良かったらアナタの家づくりの参考にして下さいね。


南の日差しを部屋に沢山取り入れる事は生活を豊かにしてくれます。そこで各部屋が南面に面するように配置しました。
夏は日射熱で室内が暑くならないように庇を設ける等の工夫もした住みやすいお家です。


2世帯住宅というと大きい建物というイメージがありますが、機能を集約して自分達にとって必要なものを選択していくと40坪くらいの建物でも十分実現できます。
2世帯住宅のメリットは親世帯と子世帯が協力しながら子育てできるところにあります。
2世帯住宅の間取りをお探しの方は是非参考にして下さいね。


そんな生活を手に入れられるような間取りです。


家族は玄関から直接自分の部屋へ行くのではなく、たとえ会話がなくても顔を合わせるような位置に階段を設けたい。そんなご要望はやはり多いです。
しかし、リビング階段だと冬場の暖気が逃げないか心配という方にはこのような位置にホールを設ける間取りをご提案しています。リビング収納を設けてリビングにものが溢れないような配慮もされており、とても暮らしやすい間取りです。


【お客様はLDKを通さずに直接和室(応接間)へ】
お客様が沢山お越しになる家で大事にしたいのはお客様の動線。
これらを意識すると家族がもちろんの事、お客様にも気を遣わせる事がありません。
LDKには子供が学校から帰ってきて勉強をしたり、パパやママがパソコンで調べ物をしたりするスタディコーナーを設け、家族みんなで長く過ごせるLDKとなるように意識しました。


【薪ストーブは手がかかる分、家に対する思い入れもより一層強くなります】
薪ストーブは火力が強く暖房能力も高い事からLDKだけ暖めるのではなく、家全体を暖められるような間取りにしました。
薪ストーブの熱がLDKの大きな吹き抜けを経由して2階の各部屋を暖めてくれます。また、ホールで遊ぶパパと子供達もファンヒーター等の局所暖房とは違って、部屋全体の暖められた空気に包まれてゆっくりと読書が出来ます。
インナーガレージもとても便利だし、水廻り動線も豊かに暮らせるようにしっかり考えました、


お客様の以下のご要望を満たす間取りです。
沢山の機能を備えていながらも35坪程度に抑えたので、ご予算的にも嬉しいプランです。


キッチンは家事の中でも一番多く使う場所。従って、キッチン周りに収納が沢山あるととても便利です。
この間取りでは食品庫(パントリー)とファミリークロークを設けました。
ファミリークロークはLDKで使う季節ものを収納できたり、急な来客があった時に物を仕舞えたりととっても便利。お客様からも中が見られないように配慮してあります。
2階には書斎を設けて、忙しいパパ・ママが集中してお仕事や読書を出来るようにしました。


キッチンの横にはダイニングテーブル。そしてその延長にはウッドデッキがある間取りです。
配膳や後片付けの動線もよく、キッチンで調理したものをウッドデッキに持って行って調理できたりと毎週末のバーベキューを楽しくしている姿が目に浮かびます。
またサンルームからもウッドデッキに出入りできような配置ですので、天気の良い週末はウッドデッキに洗濯物を干したりと大活躍してくれます。


【廊下とLDKの出入り口からはキッチンの中をみられないようにしたい】
そんな要望もいただく事が多いです。またキッチンで家事をしている時にリビングの様子を確認できるような部屋の配置もよいけど、逆の考え方をするとお客様がリビングにいる時にキッチンが見えてしまうというような事も。。。(臭い等の問題もありますね。)
そんな時に役立つのがL字のLDKです。
LDKのみならず2階各部屋の収納も充実してて、とても過ごしやすい間取りとなりました。


そんな事を考えながら完成した間取りです。
育児で忙しい共働き夫婦にオススメです。


日中はLDKの電気を付けずに自然の光で生活したい
そう願う人は多いはずです。
太陽の光が差し込むダイニングでとる朝食も気持ち良いし、家族は常にいる空間は明るいに越した事はありませんもんね。
それ以外にも
等をしっかり考慮した間取りです。


将来は結婚して親と同居する予定なので、せっかくなら最初からそのような計画を見据えた新居を。
そんな方にオススメの間取りです。
1階には親世帯(この間取りでは母親)の寝室を作り、LDKには足を伸ばしてゆっくり出来る畳コーナーも設けました。キッチンからの水廻り動線も便利です。


明るいLDKで気持ちよく生活出来るように窓の配置に工夫しました。
もちろん、キッチンからの便利な水廻り動線も確保し、来客時には玄関から直接和室へご案内出来るような動線を実現しました。
2階の収納容量も充実。寝室のヘッドボード後方には技有りのウォークインクローゼット、各子供室にもクローゼットを設けました。LDKだけなく2階各室に南の日差しが取り込め、家全体が明るくなる間取りです。


4人家族が仲良く過ごせる間取りです。
床面積はコンパクトだけど、収納を充実したい方にオススメです。
等を間取りに落とし込みました。


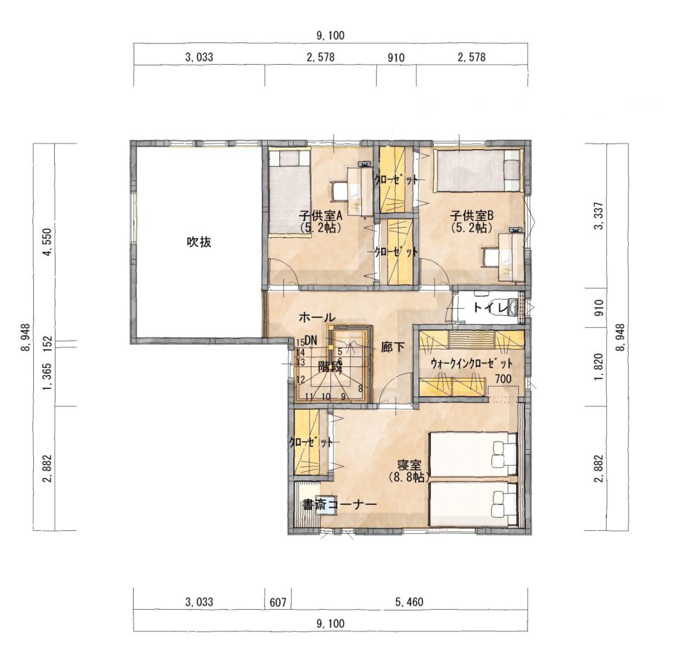
LDKに大きな吹き抜けをもうけて、開放的な空間でゆったりと過ごしたい方にオススメの間取りです。
大きなシューズクロークはもちろんの事、パントリー、寝室に隣接するウォークインクローゼット等、収納容量もしっかり確保しました。吹き抜けは光熱費の問題で避けられがちですが、第一種換気を採用したり、断熱性能を上げる事によって、問題なく生活できるようになりました。
第一種換気についてはこちらのコラムをどうぞお読みください。


キッチンは家事の中でも一番使う時間が長いスペースです。
したがって、キッチンを使いやすくしたり、キッチンから洗面所やサンルームをはじめ、家のどこにでも行けるように動線を工夫する事は豊かな生活をする上でとても大事。
これらの事を意識した間取りです。
その他、玄関⇔シューズクローク⇔リビングポケットという家族専用の動線も便利。和室からは庭木を眺められるような設えもしてみました。


自分の家族を持った子供から「一緒に住みたい」と言われれば、断る理由はないと思います。そんな理由からか、最近の人気のある2世帯住宅の間取りをご紹介。
2世帯住宅ながらもコストを抑えれる工夫を沢山盛り込んでみました。コンパクトながらも不自由なく生活できそうな間取りです。


日頃忙しいご夫婦だからこそ、マイホームではゆっくり過ごしてほしい。。。
家事負担を少しでも軽くしたり、例えお仕事をしながらでも家族で一緒にいる時間を出来るだけながくしようと工夫した間取りです。


子供が自分の部屋を使うのは数年間に対して、親は定年退職後も含めると2~30年は暮らしていかないといけません。
そこで、2階の子供部屋は+αの感覚で、基本的に平屋ベースの暮らしが出来ないか?という考えのもと、この間取りが完成しました。
水廻り動線もよく、とても暮らしやすそうなお家です。


四角い部屋は使い勝手が良いのも正直なところですが、真南に面する壁に開口部を設置したかったので、あえて斜め壁をつくり、太陽の光が沢山差し込むような工夫をしました。
さらにタイルテラスを設けて、リビングの延長スペースとしても有効活用。
子供が学校から帰ってきて、ママの目の届くところで宿題が出来るようにスタディーコーナーを設けたりと子育て世代にとって生活のしやすい間取りとなりました。


2階へ行く際には必ずリビングを通っていかないと行けなかったり、お風呂に入る時もキッチンの横を通らないと行けないような動線にした間取りです。
子供が大きくなって、会話の回数が減ったとしても、顔色等を見れるのは親としても安心ですよね。


道路から玄関が見られないように視線を遮りたい場合はこのように玄関への動線を変えると良いです。
LDKの形状には変化を持たせて作ったウッドデッキや2階のFreeスペースでは、家族団欒の時間を楽しめそうな間取りです。


学校から帰ったきた子供がリビングで宿題を出来るように作りつけの机を設置し、ランドセル等を置ける収納も設けました。
テレビを背にしての勉強なので、それなりに集中出来そうです♪
リビング+和室の間取りですが、玄関から出入り出来る和室になっているので、来客時もリビングを見られる事なくお通しできたりと重宝出来る位置に和室を配置しました。


開放的なスペースが広がる南側を有効活用出来るようにタイルデッキを設け、リビングと和室から出入り出来るように大きな窓を設置しました。
子供が学校から帰ってきた際、ママの目の届くところ(キッチンの近く)で勉強出来るようなスタディコーナーをつくり、水廻り動線も生活しやすいように工夫した間取りです。


1階に夫婦の寝室を設け、2階に子供部屋を4部屋確保したプラン。
2階は部屋数は多いので、子供が小さい時は仕切らずに大きな部屋として利用して、大きくなったら区切って使う事も可能です^^
将来、子供が巣立っても、1階だけで生活出来るようになっており、かつ寝室⇔水廻りの動線が便利なので、老後に間取りの変更(リフォーム)をしなくても暮らせるような配慮がされております。


1階にファミリークローゼットを設置しました。
1階にクローゼットがあるので、お風呂上がりや帰ってきたときなど、着替える度に階段を上り下りしなくてもいいからとても便利。
特に子どもが小さいうちは、1日に何度も着替えを取りに行ったり来たりする手間が省けて、子育て中のママはとても楽々。
サンルームも設置しているので、雪の日が続いた時の洗濯物も安心。
もちろん、洗濯物を干す以外にも、自然光を取り入れた快適な空間として、子どもの遊び場所やカフェスペースとしても利用できます♪
お庭とリビングの中間として、人気のスペースになりそうです。
1階にファミリークローゼットがあるからって、2階にないというわけではありません。
寝室には、ウォークインクローゼットを設け、また、子ども室にもクローゼットを設けています。
お洒落なママが、動線を楽にして、もっとお洒落になる。そんな感じですね。
お洒落といえば大容量のシューズクロークも。
家族のブーツや靴はもちろん、お客様がたくさん来てもすっきり収納。
納戸や外部収納も充実しているので、いつでもすっきりとしたお家で、ママ友パーティーや子どもの誕生日会など、いつでもたくさんの人が集まる楽しいお家になりそうですね。


18帖を超えるリビングは、お子様が元気に遊ぶ姿が目に浮かびます。
はしゃぎすぎていても、対面式キッチンから、ママがきちんと様子を伺えるから安心。
小学生になったら、キッチンのカウンターは、宿題スペースに。
大きな窓で太陽の陽射しがたっぷり注ぐサンルームでは、椅子とテーブルを用意してのんびりお茶をしたり、本を読んだり、時間がゆっくり流れる空間に。
働くママには、洗濯干しスペースとしても大活躍。
2Fは、家族全員のプライベートルーム。
おしゃれを楽しみたいママには約3畳のウォークインクローゼット。
仕事や趣味を充実させたいパパにも、パソコンスペースをプラン。
自分だけの空間で、何をしようか楽しみですね。
子ども室は2室。
2部屋とも、クローゼットと本棚を設置。
はじめからお片付けができる環境を用意することも大切なんです。


16帖を超えるリビングは、子育て世代に人気の対面式キッチン。
キッチンに立つママが安心なのはもちろん、子どもだってママいつもみえるところにいて安心。
だから、のびのび元気に遊べます。
階段下に収納スペースを設置し、空間の有効利用。
各部屋にも収納スペースを設けて、欲しい場所に欲しい収納でお部屋もすっきり。
2Fの、子ども室は子どもの成長に合わせて仕切れるようにプラン。
「子どもが小さいうちは、一緒のお部屋のほうがいいし、でも、大きくなったらどうしよう?」
なんてパパママの悩みを解消。
2部屋とも、クローゼットがついているので、「大きくなったら、自分で片付けようね。」と小さい頃からのお片付けの習慣がつきます。
パパママの寝室にもウォークインクローゼットを設置。
小窓をつけて換気にも配慮。
大事なお洋服やバックもきれいに保管できます。
また、大きなバルコニーは洗濯物の多い子育て中や働くママの味方。


大理石調フロアの玄関ホールには、第二の洗面化粧台を作りつけました。玄関近くにあると、帰宅後すぐうがい・手洗いができますね。メインの洗面室は部屋の奥、対極の場所にあるので、お掃除の時にも便利です。
玄関ホールの先には、23.2畳のLDKが広がります。
アイランドキッチンを中心に、リビング・ダイニングが配置されています。料理をご家族で楽しむ家庭にピッタリな間取りです。
アイランドキッチンは、廻りをぐるりと移動できるのが良いところ。キッチンに立つ奥様がいるために冷蔵庫にたどり着けない…といったことがありません。
キッチンの向こう側にある、洗面化脱衣室やパントリーへ、家族全員、ラクにアクセスできます。
ダイニングスペースには、パソコンやお子さまの宿題をするのに便利なカウンターテーブルを。近年、子供は自室よりも、家族が集まるリビングダイニングで勉強ほうが学力アップによいと言われています。壁に向かったこの場所なら、家族と一緒でありながら、集中して勉強もできそうです。
洗面脱衣室の右はお風呂、左にサンルームを配置。天候の悪い日や花粉・PM2.5の気になる時でも、サンルームなら安心して洗濯物を干すことができます。
洗濯機をサンルームに置くことで、洗面脱衣室を広々と使えますね。
リビング横に、屋根つきのウッドデッキを施工。お天気のよい日のランチや、夕涼みなど、楽しみが広がります。
LDKの隣に配置することも多い和室ですが、ここでは、独立した和室を採用。来客時には重宝します。坪庭を眺めるのも楽しみのひとつになりそうです。
2Fは、ファミリーホールとして、広々としたスペースを作りました。このスペースは、将来的には壁を追加し、今は一つの子ども部屋を二つにすることができるよう配慮したつくりになっています。ファミリーホールからは奥行きのあるバルコニーに続いています。
ご両親の使う主寝室には、大容量のウォークインクローゼットをご用意。
幅広のバルコニーは主寝室と子ども部屋の両方から出る事ができ、屋根があるので、洗濯物を干していても少々の雨なら濡れる心配がありません。
大容量の納戸もプランニングしていますので、家族の季節の品や、思い出の品などもスッキリと収納ができます。
家族の団らんと、充実の収納をもつ、3LDKの間取りプラン。
いかがでしたでしょうか? あなただけの間取りプランも、もちろんお作りいたします!
ぜひ、シティハウスにご相談ください。


「敷地に制限があったり、ご予算の都合であまり大きな家は建てれないけど、子供達それぞれには自分の部屋を作ってあげたい」という方にオススメの間取りです。
コンパクトながらも2階にはウォークインクローゼット、各子供室にクローゼットを確保しており、収納容量も充実しています。
また階段下の天井の低い空間が一部LDKにかかっていますが、人が通らない空間になるようにテレビ等を配置するなどの工夫が盛り込まれています♪


玄関土間にはコートもかけられるシューズクロークを置いたことで、お出かけ前の支度がスムーズにできます。玄関あがってすぐ左には、和室を配置。来客時にはすぐお客様をお通しできますね。
玄関正面の引き戸を開けると、18.7帖のLDKが広がります。LDKには3帖の畳スペースが隣接していますので、ちょっと横になりたいときなどに重宝します。
リビングスペースの向こうには、アイランドキッチンを。アイランドキッチンは左右どちらからもアクセスができるので、動線がスムーズです。ダイニングテーブルはキッチン横に置いたので、お料理や食器の運搬がラクラク。
キッチン横には、洗面化粧室とお風呂、サンルームをプランニング。サンルームはキッチンからも出入りができます。花粉・PM2.5の気になる時や天候の悪い日でも、サンルームで安心して洗濯物を干すことができますね。お料理と洗濯に使うスペースを集約した、家事動線に優れた間取りです。
階段下のスペースを無駄なく収納として有効活用しています。
2階は、ご両親の使う主寝室と2つの洋室、納戸、トイレをプランニング。主寝室には、ご両親分の荷物分を想定して、二間の広さのクローゼットをご用意しました。2つの洋室はシンメトリーに配置しています。いづれもバルコニー、クローゼットを有しています。約3帖の納戸は、家族の思い出の品や季節の品などの収納に使っていただけます。
外観データーを保存していないのでお見せする事は出来ません。
間取りギャラリーは、商談してご縁のなかったお客様の間取りや没プラン等を載せています。一生懸命、実際の生活をイメージしながらの間取りですので参考になると思うのですが、生憎外観データまで保管している事はないのでお見せする事が出来ません。
当サイトの施工事例ページに外観写真がありますのでご覧ください。
もちろん可能です。遠慮なくご利用ください。
ある意味、日の目をみなかった間取りですので、逆にご採用くださればとても嬉しいです。
しかしながら、敷地は1つとして同じ条件はありませんし、人それぞれの考え方や価値観は違いますので、ご自分達が生活しやすいようにアレンジされた方が豊かな生活を送れるのではないかと考えています。
採用するキッチンやお風呂、床材等によって金額が変わるのでお伝えできません。
もちろん大丈夫です。しかし、お答えするのは私達の商圏内で建築をご検討中の方とさせて頂きます。
言い方が大変難しいのですが、私達の時間も有限です。したがって、私達の商圏内のお客様の家づくりのお手伝いに集中したいという想いもあり、基本的に間取りに関する質問についてはご回答しかねる場合もあります。大変申し訳ありませんが、ご理解を頂ければと思います。