

とことんママの【嬉しい】を考えた動線計画の間取りです。
水廻りが集中しているため、家事動線も短くなるように配慮しました◎


コロナウィルス感染症拡大によって【巣ごもり】という生活スタイルが日常になりつつありますが、そんな日々を充分豊かに暮らせるような間取りです。
1階は趣味室をもうけ、夫婦や子供と趣味の時間をすごせたり、大きな外部収納はDIYを楽しむスペースとしても活用できます。
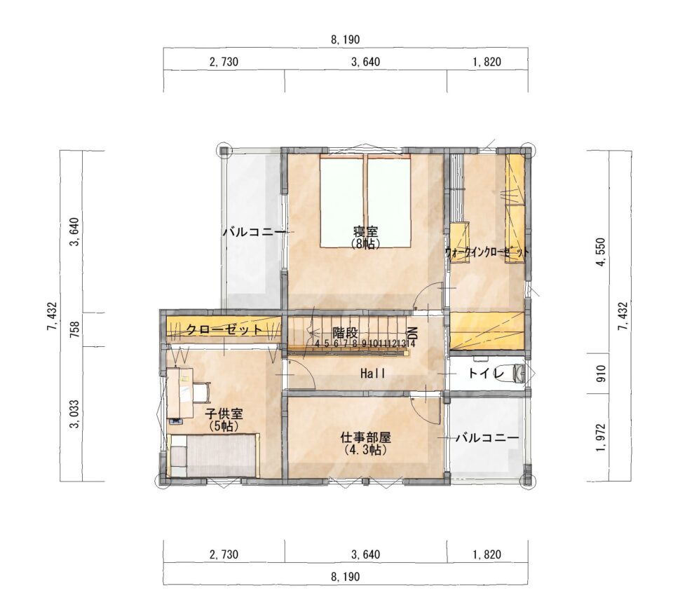
2階には仕事部屋をつくり、リモートワークにも充分対応できるような配慮もしてあります。
大きなバルコニーが2ヶ所あるのも、気持ち良い生活を送れそうですよね。
親子3人のお家ですが、家族が増えれば趣味室を子供室として使う事もできます。
家族の成長に合わせてフレキシブルに間取りも変えれたり出来るのも使い勝手が良いのではないかと思います。


家族が楽しく暮らせる工夫を沢山取り込んだお家です。


キッチンは家事の中でも一番多く使う場所。従って、キッチン周りに収納が沢山あるととても便利です。
この間取りでは食品庫(パントリー)とファミリークロークを設けました。
ファミリークロークはLDKで使う季節ものを収納できたり、急な来客があった時に物を仕舞えたりととっても便利。お客様からも中が見られないように配慮してあります。
2階には書斎を設けて、忙しいパパ・ママが集中してお仕事や読書を出来るようにしました。


開放的なスペースが広がる南側を有効活用出来るようにタイルデッキを設け、リビングと和室から出入り出来るように大きな窓を設置しました。
子供が学校から帰ってきた際、ママの目の届くところ(キッチンの近く)で勉強出来るようなスタディコーナーをつくり、水廻り動線も生活しやすいように工夫した間取りです。
外観データーを保存していないのでお見せする事は出来ません。
間取りギャラリーは、商談してご縁のなかったお客様の間取りや没プラン等を載せています。一生懸命、実際の生活をイメージしながらの間取りですので参考になると思うのですが、生憎外観データまで保管している事はないのでお見せする事が出来ません。
当サイトの施工事例ページに外観写真がありますのでご覧ください。
もちろん可能です。遠慮なくご利用ください。
ある意味、日の目をみなかった間取りですので、逆にご採用くださればとても嬉しいです。
しかしながら、敷地は1つとして同じ条件はありませんし、人それぞれの考え方や価値観は違いますので、ご自分達が生活しやすいようにアレンジされた方が豊かな生活を送れるのではないかと考えています。
採用するキッチンやお風呂、床材等によって金額が変わるのでお伝えできません。
もちろん大丈夫です。しかし、お答えするのは私達の商圏内で建築をご検討中の方とさせて頂きます。
言い方が大変難しいのですが、私達の時間も有限です。したがって、私達の商圏内のお客様の家づくりのお手伝いに集中したいという想いもあり、基本的に間取りに関する質問についてはご回答しかねる場合もあります。大変申し訳ありませんが、ご理解を頂ければと思います。